Четырехкомнатная квартира 85,00 м2 по ул. Свободы 27к2 за 15790000 руб.

Четырехкомнатная квартира по ул. Свободы, 27к2 в Ярославле
Цена 15 790 000 р. (185 765 р./м2)
Подать заявку на ипотеку
Адрес Свободы, 27к2
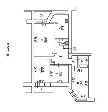
Этаж 6/8
Площадь общая 85 м2, жилая 56,3 м2, кухни 11,1 м2
Кол-во комнат Четырехкомнатная
Арт. 83724924. Редкое предложение по продаже четырехкомнатной квартиры в центре города Яросавля Точный адрес: г. Ярославль, ул. Свободы 27 Дом "клубный" с минимальным колличеством квартир, 1984 года постройки, кирпичный Квартира расположена на 6 этаже 8 этажной части дома, с видом на ТЮЗ, ул. Свободы и внутреннюю часть двора. Состояние - жилое Придомовая территория огорожена по периметру и оснащена автоматизированной въездной/входной группами Прекрасная локация! Всё рядом. Один взрослый собственник -------------------------------------- ------------------------ Без комиссии для покупателя! ------------------------------------------------- ------------- 1. Больше информации по телефону и в форме чата. 2. Для иногородних клиентов оперативно покажем объект по видеосвязи. 3. Приглашаем посредников к сотрудничеству на выгодных условиях. 4. Если этот объект не понравился по фотографиям и описанию - обращайтесь, предложим альтернативу. 5. Фиксируем звонки в режиме 24/7, для Вашего удобства работает контакт-центр.
Описание дома
Этажность дома 8
Объявление № 23294827
Дата подачи:
6 октября 2025 г. 1:14
Дата обновления:
16 октября 2025 г. 1:31
Просмотров 6 Хотите продать быстрее?

Продавец
Петрова Эрика
Показать номер телефона
Пожаловаться
Комментарии:
Добавить